top of page

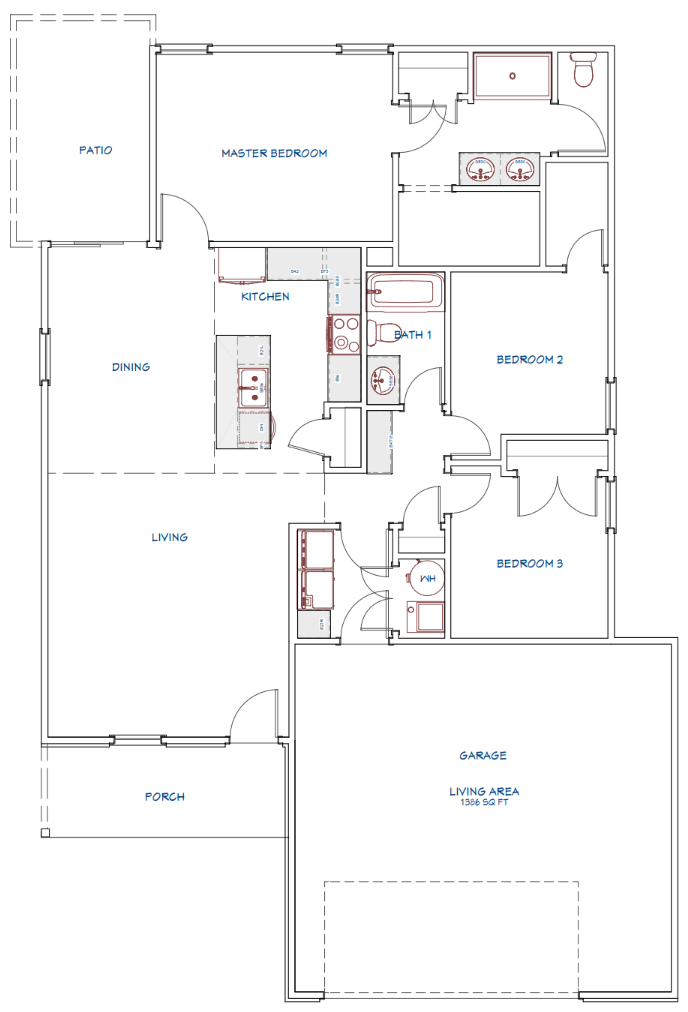
Rushmore
The Rushmore offers an inviting layout with spacious living areas ideal for relaxing or entertaining. A well-designed kitchen connects naturally to dining and living spaces, while bedrooms provide comfort and privacy.
3
Bedroom
1
Story
2
Bathroom
1386
sq ft
Specifications
Safety
Storm Shelter Included
Included
Appliances
Washer, Dryer, Range/Oven, Microwave, Refrigerator, & Dishwasher
Landscaping
Irrigation & Yard Included
Kitchen
Granite Countertops
Features & Amenities
Carpeted bedrooms & LVP living space
Open living concept
Vaulted ceilings
Granite countertops
Spacious kitchen with modern appliances
Blinds included
Appliances included
Landscaping & irrigation included
Love This Plan?
Contact us today to learn more about this floor plan and start building with Liberty Communities.
bottom of page
%20IMG.png)

