top of page

Liberty
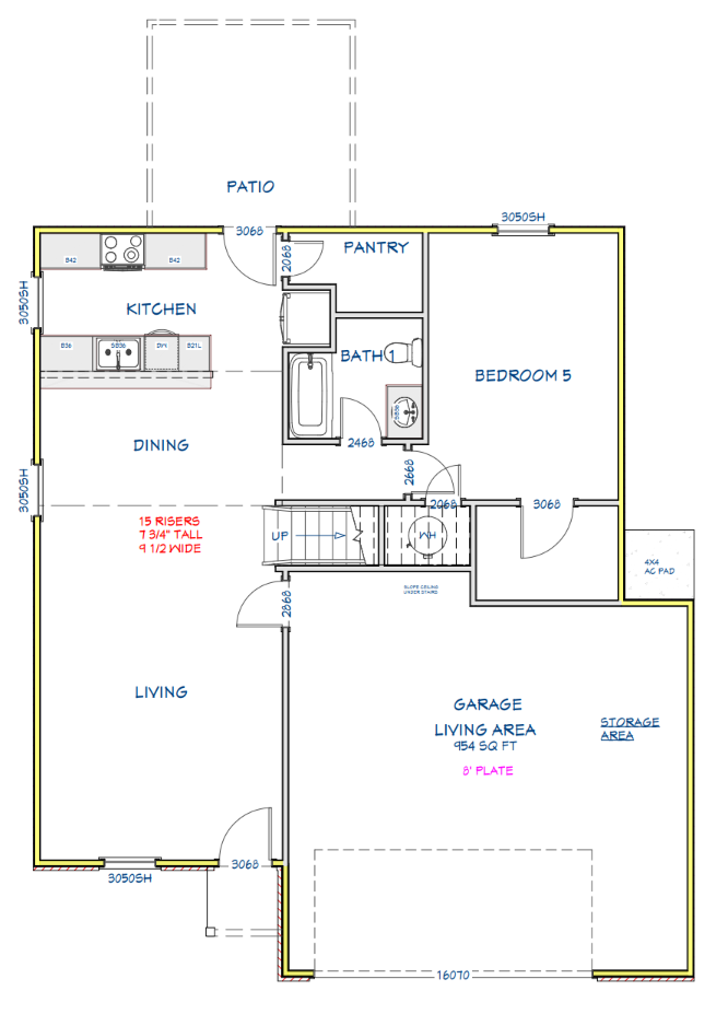
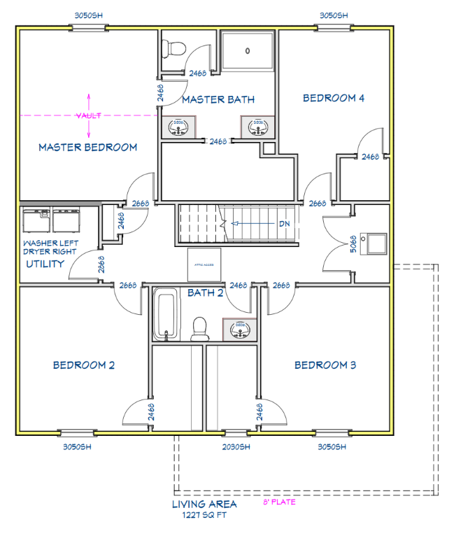
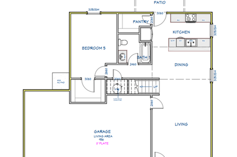
The Liberty offers spacious two-story living designed for comfort and flexibility. Open main-floor living areas create a welcoming gathering space, while upstairs bedrooms provide privacy and room to grow.
5
Bedroom
2
Story
3
Bathroom
2181
sq ft
Specifications
Safety
Storm Shelter Included
Included
Appliances
Washer, Dryer, Range/Oven, Microwave, Refrigerator, & Dishwasher
Landscaping
Irrigation & Yard Included
Kitchen
Granite Countertops
Features & Amenities
Carpeted bedrooms & LVP living space
Open living concept
Vaulted ceilings
Granite countertops
Spacious kitchen with modern appliances
Blinds included
Appliances included
Landscaping & irrigation included
Love This Plan?
Contact us today to learn more about this floor plan and start building with Liberty Communities.
bottom of page
%20IMG.png)


