top of page

Independence
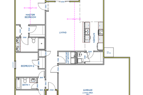
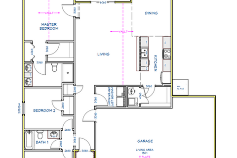
The Independence provides flexible living with an open layout that encourages connection. Generous living spaces flow naturally together, while private bedrooms and convenient storage make everyday living easy.
3
Bedroom
1
Story
2
Bathroom
1501
sq ft
Specifications
Safety
Storm Shelter Included
Included
Appliances
Washer, Dryer, Range/Oven, Microwave, Refrigerator, & Dishwasher
Landscaping
Irrigation & Yard Included
Kitchen
Granite Countertops
Features & Amenities
Carpeted bedrooms & LVP living space
Open living concept
Vaulted ceilings
Granite countertops
Spacious kitchen with modern appliances
Blinds included
Appliances included
Landscaping & irrigation included
Love This Plan?
Contact us today to learn more about this floor plan and start building with Liberty Communities.
bottom of page
%20IMG.png)

