top of page
Franklin
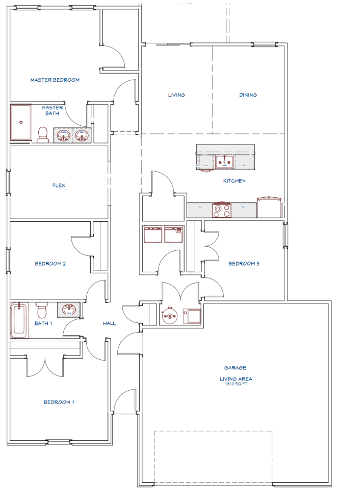
The Franklin features a bright, open layout perfect for gathering with family or friends. Spacious living areas connect seamlessly to the kitchen and dining space, while private bedrooms offer peaceful retreats.
4
Bedroom
1
Story
2
Bathroom
1801
sq ft
Specifications
Safety
Storm Shelter Included
Included
Appliances
Washer, Dryer, Range/Oven, Microwave, Refrigerator, & Dishwasher
Landscaping
Irrigation & Yard Included
Kitchen
Granite Countertops
Features & Amenities
Carpeted bedrooms & LVP living space
Open living concept
Vaulted ceilings
Granite countertops
Spacious kitchen with modern appliances
Blinds included
Appliances included
Landscaping & irrigation included
Love This Plan?
Contact us today to learn more about this floor plan and start building with Liberty Communities.
bottom of page
%20IMG.png)

